
Kjerne
Kjerne er ei moderne hytte, laget med rom for dine nærmeste.
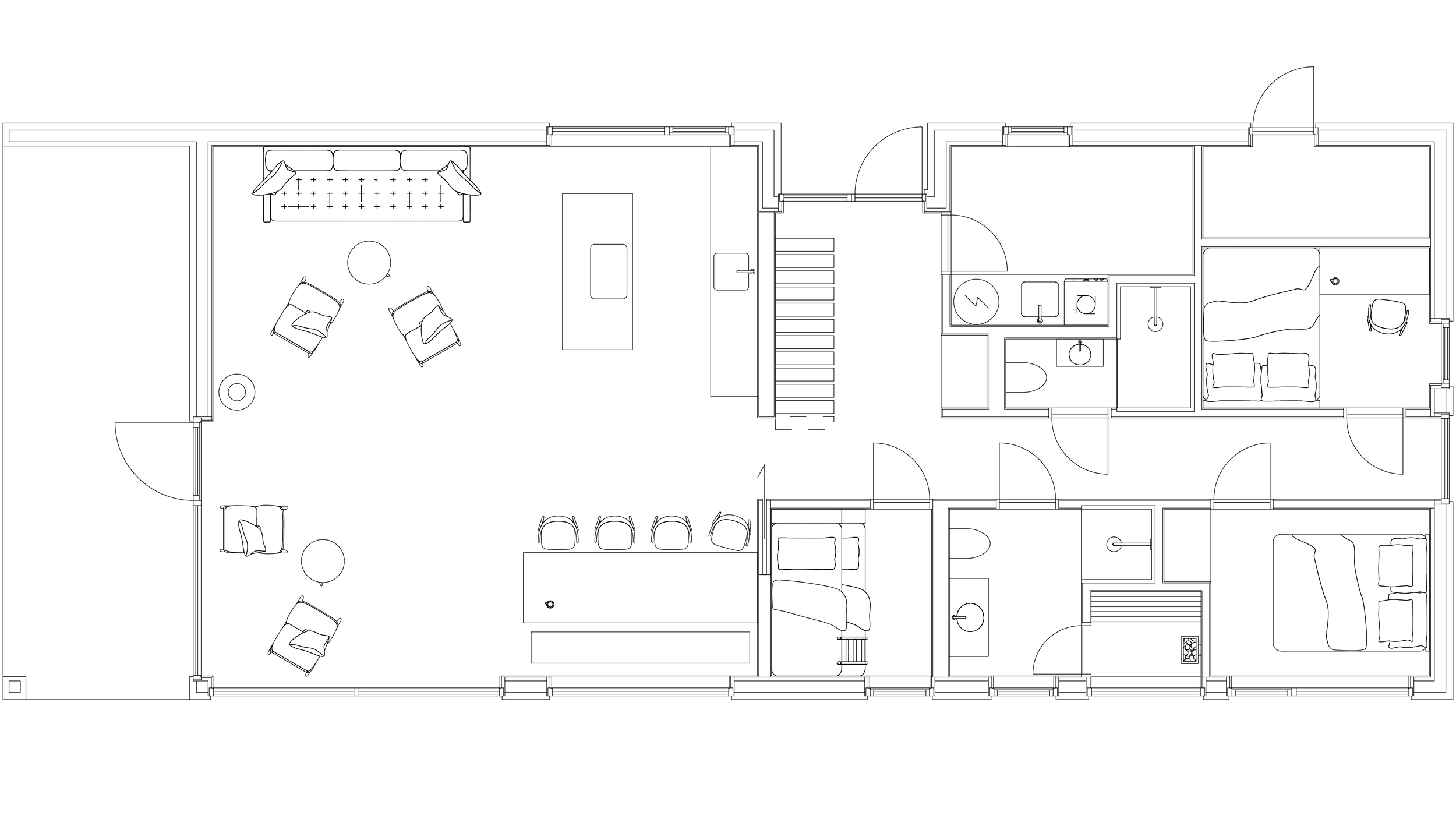
Kjerne er delt i to på tvers; med en oppholdsdel og en funksjonsdel, adskilt med skyvedør. Den luftige oppholdsdelen har stue- og kjøkkenløsning med åpen himling og store glassflater. Over funksjonsdelen er det hems eller loft med god takhøyde som gir fleksibilitet og muligheter.
Bredde: 8,1 meter
Mønehøyde: 5,3 – 5,6 meter
Bredde: 7,2 meter
Mønehøyde: 5,3 – 5,6 meter
Bredde: 6,3 meter
Mønehøyde: 5,2 meter




Kjerne stor;
romslig og innholdsrik
Kjerne stor leveres med enten hems eller loft. Hytta er funksjonell og allsidig, og kan tilpasses etter dine ønsker med blant annet bad, badstue, vaskerom og bod. Velger du en forhøyet variant, får du i tillegg ekstra godkjent areal på loftet.
Nøkkelinfo
Bredde: 8,1 meter
Lengde: 15,2 meter
Mønehøyde: 5,6 meter
Antall soverom: 4
BYA: 127 m2
BRA: 109,2 m2
BRA hovedplan: 92,9 m2
BRA loft: 16,3 m2
Nøkkelinfo
Bredde: 8,1 meter
Lengde: 18,4 meter
Mønehøyde: 5,6 meter
Antall soverom: 5
BYA: 154 m2
BRA: 141,3 m2
BRA hovedplan: 117,6 m2
BRA loft: 23,7 m2
Kjerne medium;
alt du trenger
Kjerne medium leveres i to høyder: standard og loft. Standardvarianten gir ikke målbart areal på hemsen. Stua kan ha samme lengde som i Kjerne stor, men hytta er smalere, med mer kompakte rom. Likevel rommer den det du trenger, og tilpasses dine behov.
Nøkkelinfo
Bredde: 7,2 meter
Lengde: 14,3 meter
Mønehøyde: 5,6 meter
Antall soverom: 4
BYA: 107 m2
BRA: 91,2 m2
BRA hovedplan: 75,7 m2
BRA loft: 15,5 m2
Nøkkelinfo
Bredde: 7,2 meter
Lengde: 18,4 meter
Mønehøyde: 5,6 meter
Antall soverom: 5
BYA: 137 m2
BRA: 127,2 m2
BRA hovedplan: 103,5 m2
BRA loft: 23,7 m2
Kjerne liten;
arealeffektiv og smart
Kjerne liten er perfekt for deg som ønsker smarte løsninger og god design, eller har begrenset plass. Hytta er arealeffektiv og gjennomtenkt, og hemsen gir rom for ekstra lagring eller soveplasser. Modellen tilpasses enkelt etter dine behov.
Nøkkelinfo
Bredde: 6,3 meter
Lengde: 14,5 meter
Mønehøyde: 5,2 meter
Antall soverom: 3
BYA: 95 m2
BRA: 66,5 m2
BRA hovedplan: 66,5 m2
BRA hems: ikke målbart
Nøkkelinfo
Bredde: 6,3 meter
Lengde: 18,0 meter
Mønehøyde: 5,2 meter
Antall soverom: 4
BYA: 118 m2
BRA: 87,5 m2
BRA hovedplan: 87,5 m2
BRA hems: ikke målbart
Veien til din Kjernehytte
Har du allerede forelsket deg i Kjerne, eller trenger du hjelp til å velge hytte? Sammen med deg tilpasser vi ut fra dine ønsker, behov og tomt.
Hytta leveres som byggesett, for raskt og enkelt oppsett. Vi leverer bærende konstruksjoner, vegg og takverk som precut, altså ferdig kappet. Vi kan tilby ulike grader av ferdigstillelse, fra rent byggesett-salg til nøkkelferdig leveranse over hele landet. Vi har god dialog med deg og håndverkerne hele veien, og vi har også gode samarbeidspartnere på fast innredning som du kan velge å benytte deg av.
Våre materialer
Det leveres et eksklusivt, hvitpigmentert, kvistfritt furupanel. Heltregulv i furu, behandlet med lys hardvoksolje i brede planker.
Smale vindusrammer maksimerer utsikt, lysinnslipp og nærhet til naturen. Eksklusive designvinduer med 3-lags energiglass.
Utvendig leveres kledning i malmfuru med jernvitrol og et moderne tretak i slett uttrykk.
Bærende konstruksjoner, vegg og takverk leveres som precut for et raskt og effektivt oppsett.
